
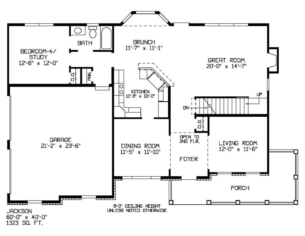
This 4-bedroom traditional home has a captivating facade of brick and gables along with an inviting front porch with metal roof. Inside the two-story foyer greets visitors in grand style with the elegant dining room to the left. The kitchen is the central hub, adjacent to the dining room and breakfast area, all open to the great room. The master bedroom includes a gorgeous tray ceiling and boasts a master bath with luxurious soaking tub, shower and a sitdown vanity flanked by his and her vanities
The Jackson Details
- Square Feet: 2509
- Bedrooms: 4
- Bathrooms: 3
- Floors:
- Building Area:60 x 40
The Jackson Floor Plan

2nd Level Floor Plan



